Calculette
Partager
Programme de rénovation face à la mer
Description de l'offre
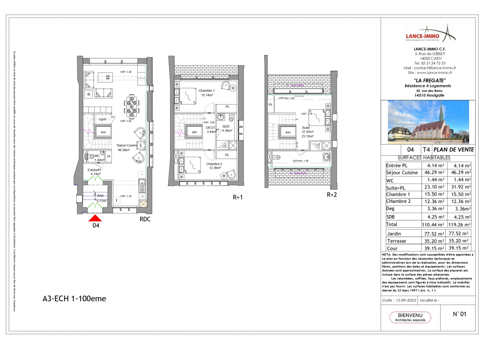
L'agence NORMANDY CASTEL vous propose une résidence unique face à la mer : LA FREGATE – Cette résidence bénéficie d'un emplacement sans comparaison à Houlgate -sur la Côte Fleurie - avec un accès direct sur la plage. LA FREGATE consiste en la transformation d'un ancien temple et presbytère en logements neufs avec pleine vue mer pour tous et des volumes exceptionnels. Ce projet d’habitation proposera des prestations très haut de gamme avec deux ascenseurs, vidéosurveillance, 2 stationnements par logement, locaux vélos privatifs, balcons et jardins face à la mer. Cette future résidence sans précédent sur le littoral ne proposera que 4 lots avec pour chacun une triple exposition, de très grandes surfaces, un environnement préservé et des accès direct à la plage. L’accès aux commerces et aux services de la ville se fait à pied en quelques minutes. L’aéroport de Deauville Saint Gatien et la gare SNCF se situent à 25min. L’A13 est à 15min en voiture. Ce projet s’inscrit dans la préservation de l’environnement et du patrimoine local. Il s’agit de la réinvention d’un lieu historique de la commune pour de futurs résidents privilégiés, avec tout le confort défini par les normes de construction actuelles (Réglementation thermique ROE 2020, accessibilité personnes à mobilité réduite…)
Descriptif du bien
- Code postal : 14510
- Surface habitable (m²) : 117 m²
- Surface loi Carrez (m²) : 116,11 m²
- Nombre de chambre(s) : 3
- Nombre de pièces : 3
- Nombre de niveaux : 3
- Vue : Mer
- Nb de salle de bains : 2
- Nb de salle d'eau : 3
- Cuisine : AMERICAINE
- Mode de chauffage : Electrique
- Type de chauffage : Radiateur
- Format de chauffage : Individuel
- Interphone : NON
- Visiophone : OUI
- Terrasse : OUI
- Exposition : OUEST
- Année de construction : 1952
- Terrain piscinable : NON
- Copropriété : OUI
- Lot n° : 04
- nombre de lots : 4
- Prix de vente honoraires TTC inclus : 1 205 000 €
La ville de Houlgate (14510)
Nous Contacter
Afficher le téléphone 02 31 87 01 29Les informations recueillies sur ce formulaire sont enregistrées dans un fichier informatisé par La Boite Immo agissant comme Sous-traitant du traitement pour la gestion de la clientèle/prospects de l'Agence / du Réseau qui reste Responsable du Traitement de vos Données personnelles.
La base légale du traitement repose sur l'intérêt légitime de l'Agence / du Réseau.
Elles sont conservées jusqu'à demande de suppression et sont destinées à l'Agence / au Réseau.
Conformément à la loi « informatique et libertés », vous disposez des droits d’accès, de rectification, d’effacement, d’opposition, de limitation et de portabilité de vos données. Vous pouvez retirer votre consentement à tout moment en contactant directement l’Agence / Le Réseau.
Consultez le site https://cnil.fr/fr pour plus d’informations sur vos droits.
Si vous estimez, après avoir contacté l'Agence / le Réseau, que vos droits « Informatique et Libertés » ne sont pas respectés, vous pouvez adresser une réclamation à la CNIL.
Nous vous informons de l’existence de la liste d'opposition au démarchage téléphonique « Bloctel », sur laquelle vous pouvez vous inscrire ici : https://www.bloctel.gouv.fr
Dans le cadre de la protection des Données personnelles, nous vous invitons à ne pas inscrire de Données sensibles dans le champ de saisie libre.
Ce site est protégé par reCAPTCHA, les Politiques de Confidentialité et les Conditions d'Utilisation de Google s'appliquent.

